改装部門
TDYリモデルスマイル作品コンテスト2020 テーマ別部門「家族の想いを動かすリモデル」
一戸建て
工事費用 約 1,300 万円
施主名 C様邸
福岡県行橋市
改装
お打ち合わせ…30日間
設計デザイン…15日間
工事期間…90日間
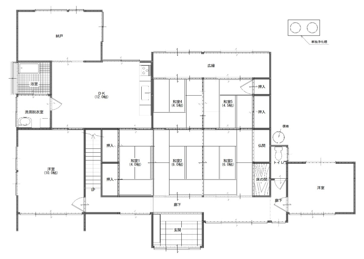
これまで増改築を何度も行ってきた愛着のある家。3人のお子様が巣立ち、ご主人様も定年を迎えて、今まで当たり前のように使用してきた空間をもっと快適にできないか、段差のない安心できるLDKや水廻りの動線にできないか、などの問題点を解決するために相談会へご来場されました。
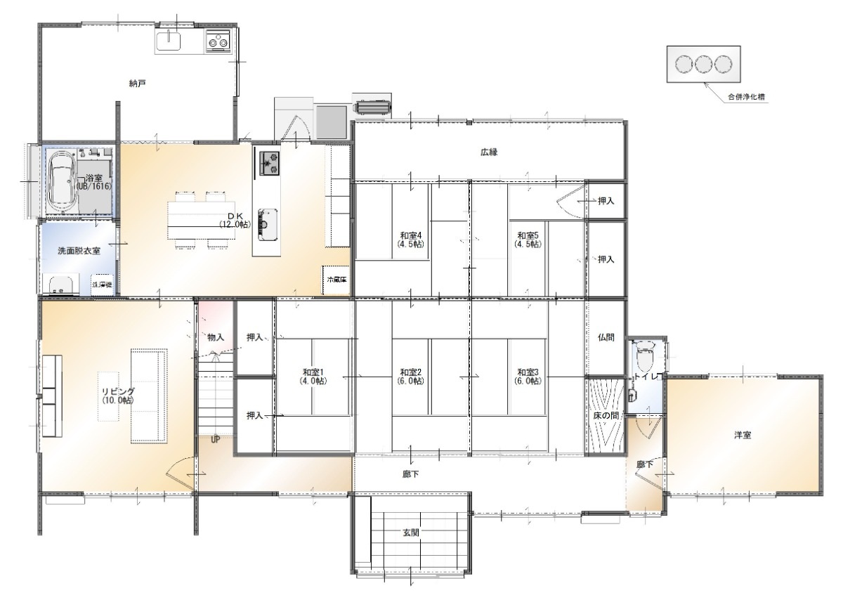
これまでは納戸に置かれていた洗濯機。当初はそのままで収納力を向上するプランでしたが、今回が最後のリフォームで今後も長く住み継ぐのならと洗濯機の配置変更をおすすめ。食卓としていた空間も掃き出し窓があったため対面キッチンは難しい状況でしたが、普段の用途を伺った結果、通風勝手口とスライド窓に変更することで使い勝手と断熱性も大きく向上。窓の仕様変更によりキッチンの配置も決まり、すべてのレイアウトが決定。ダイニン横の洋間もリビングとして有効活用したため、広々LDKを実現。開閉間仕切り戸で仕切れるので季節により使い方を変化させることができます。
築年数が40年を経過しており、断熱性の低さからの冬場の寒さと給水管の老朽化が容易に予測されたため、あらかじめそれらの改修も含めた内容で提案させていただきました。TV配線もいくつかに分け、普段の生活とお子様世帯が遊びに来られた時の空間の変化にも対応させました。解体した際には筋交いの補強で耐震面の向上、また断熱材を敷きこみ断熱性能を飛躍的に向上させ、目には見えませんが快適性・安全性を取り入れました。
自分たちでは漠然としたイメージしか沸かず、プロの視点からの提案に喜んでいます。工事中も柱や梁の確認を受けながら進められたことで、今後長く住むうえで安心できました。最初はレイアウトの変更や部屋の新しい使い方の提案に戸惑いましたが、実際にリフォームした今はとても気に入っています。主人の念願だった「ソファでくつろぎながら大きな画面のテレビを観る」生活も叶って、すっかりテレビの前が定位置になりました。断熱性能が向上したことでエアコンの効きも良く、快適に過ごしています。







ヒアリングを進めていく中で最善のプランが実現できたと思います。お客様が希望するプラン以上の付加価値を提供することが満足リフォームの一番の近道だと思います。開閉式間仕切り戸も季節や来客にあわせて活用されているとお聞きして嬉しい限りです。
