LDK部門
TDYリモデルスマイル作品コンテスト2020 部位別部門「自由空間」
一戸建て
工事費用 約 950 万円
N邸
福岡県古賀市
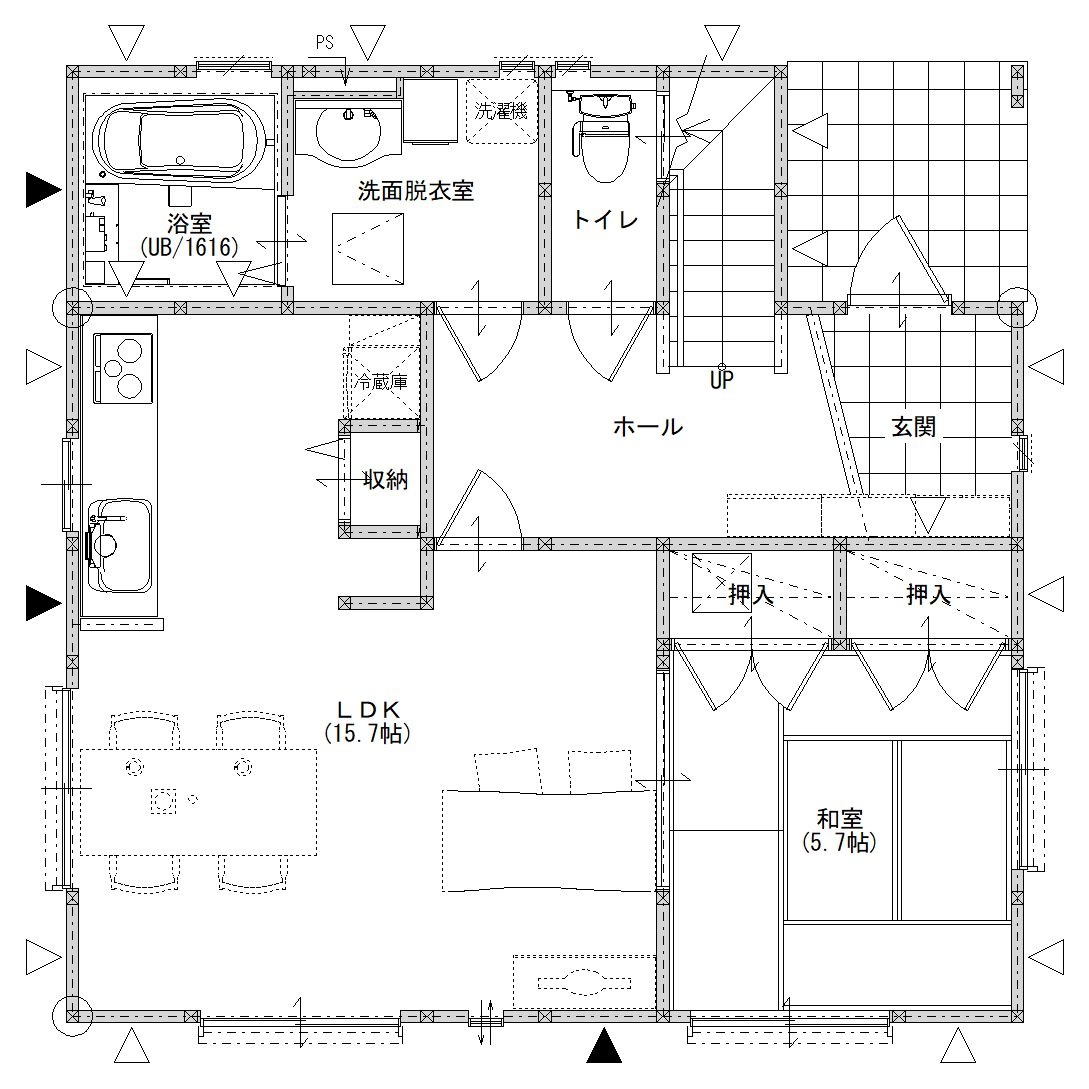
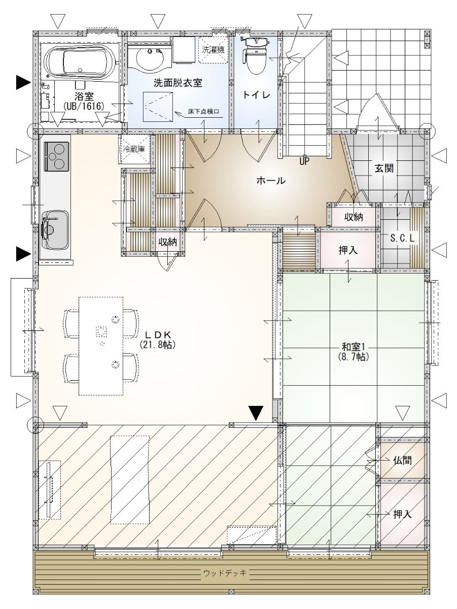
LDK
福岡東店
お打ち合わせ…30日間
設計デザイン…10日間
工事期間…35日間
お亡くなりになられたご主人様が計画されていた、増築するという夢を叶えてあげたいという強い思い、そしてご主人様のために仏間を作りたいという思いから、今回のリフォームを決心されました。
また、奥様自身もリビングが手狭に感じられており、広く明るい空間にしたいというご要望がありました。
普段は息子様と2人暮らしのため、1階のみの増築をご提案しました。
リビングと和室の間の壁を無くし、必要なときのみ扉で部屋を区切れるようにしました。
また、より明るく開放的な空間にするために大きいサイズの窓を選定。さらに採光と通風ができる雨戸シャッターを取り付け、より快適に過ごすことのできるお部屋をご提案しました。
ご主人様への思いを大切にされている奥様のために、仏間は毎日お給仕やお参りがしやすい、家族が普段過ごす場所と同じ空間に配置することをご提案しました。
明るさや風通しにも配慮し、いつも家族みんなで一緒に過ごすことのできる空間作りを行いました。
キレイな仏間がつくれて本当に良かったです。普段は和室との扉を開けて過ごしているのでいつも家族がいる場所に仏壇があり、主人も寂しい思いをせずにいると思います。
増築して明るく広くなったリビングで孫がのびのびと遊んでいる姿を見た時は、主人の夢を素敵な仕上がりで実感できて、嬉しい気持ちでいっぱいになりました。





ご主人様が計画されていたリフォームへの思いと、奥様方の今後の暮らし、両方を考慮して提案をさせていただきました。奥様のご主人様への想いを、リフォームという方法でカタチにするお手伝いができ大変嬉しく思います。
