マンション全面改装部門
TDYリモデルスマイル作品コンテスト2019
テーマ別部門
「憧れの暮らしをかなえるリモデル」
マンション
工事費用 約 700 万円
T様邸
福岡県北九州市小倉北区
マンション全面改装
本店
お打ち合わせ…40日間
設計デザイン…10日間
工事期間…60日間
以前から、仕切られた間取りによる風通しの悪さや採光の悪さに不満を持たれていました。ご夫婦2人での生活になったこともあり、間取りの変更や老朽化した水廻り設備の取り替え、老後に備えての段差解消など全面的なリフォームのご相談をお受けしました。ご自身で「要望リスト」を作られており、明確なイメージと優先順位をお持ちでしたのでそれをもとにお打ち合わせをさせていただきました。
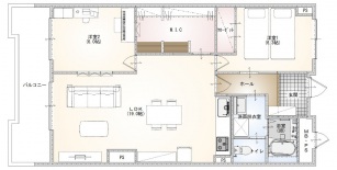
バルコニー側にあり光をさえぎっていた和室は、1部屋をダイニングに取り込み広いLDKに、もう1部屋はご主人様念願の書斎にしました。水廻り設備は最新のものへと取り替え、トイレのドアは開き戸から引戸へと変更。段差はすべてフラットに改善。湿気を気にされていた廊下には調湿パネルを設置しました。
子供部屋として使用していた和室や納戸になっていた部屋を有効活用することで、採光の確保、広いLDK空間、書斎などのご要望に対応しました。風が通らず湿気やにおいが気になっていましたが、間取り変更と室内窓の設置によって、どの部屋にも風が通るようになりました。また、家具はできるだけ処分して壁面収納で収納スペースを確保したいとお考えでしたが、より収納力の高いウォークインクローゼットをご提案しました。
明るく開放的なLDKをはじめ、各部屋の風通りが良くなり、段差もなくなって安心で暮らしやすくなりました。昔から念願だった書斎も作れましたし、ウォークインクローゼットで収納不足も解消されて、毎日夫婦で快適に楽しく過ごしております。リビングには絵を飾ろうかとも考えておりましたが、提案していただいた室内窓が部屋のアクセントにもなり気に入っております。新しくしたトイレや洗面所も手入れが簡単で、妻に任せきりだった掃除も進んでするようになりました。











全体的に古くなったトイレ。
スタイリッシュなデザインの最新式トイレ。カウンター付きの紙巻き器や手すりも取り付け使いやすくなりました。
お客様自身ではっきりとしたご要望とその優先順位を持たれていたので、ご要望をしっかり反映するプランとプラスアルファのご提案を行うことができました。リフォーム後の具体的なイメージを持つことは簡単ではないですが、まずは「要望リスト」などで希望する内容をまとめてみることをおすすめします。
