水まわり部門
一戸建て
工事費用 約 440 万円
H邸
福岡県福岡市南区
水まわり
福岡南店
お打ち合わせ…30日間
設計デザイン…14日間
工事期間…30日間
築28年のマンションで初めてのリフォームをご計画のH様。
今まで一度も修繕をしてこなかったため、経年劣化による設備機器の変色や蛇口部分からの水漏れ、各部屋の内装も剥がれや汚れが気になっていました。今後のことを見据え、ご夫婦2人で過ごしやすく、かつおしゃれな空間にしたいとのご相談でした。
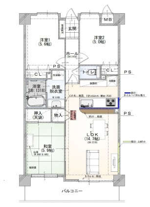
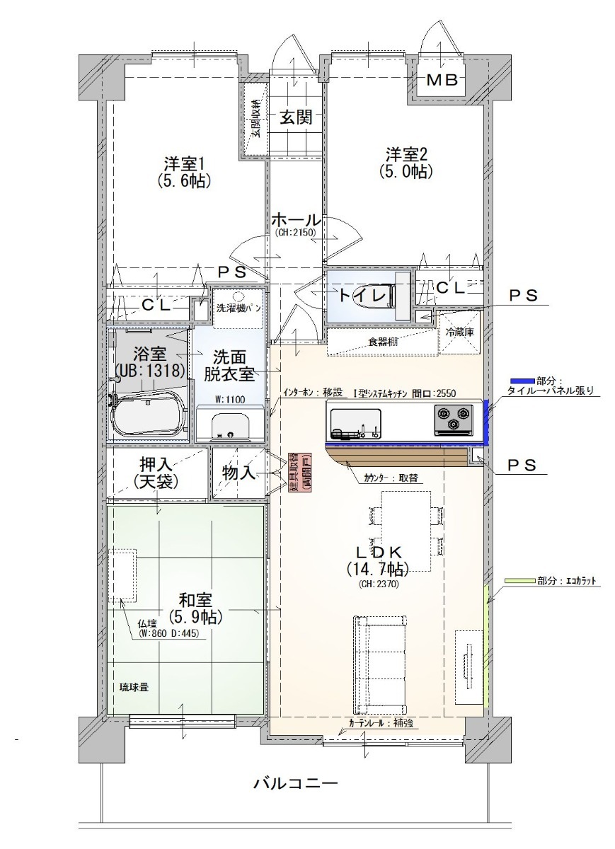
浴室と洗面室は設備の取り替えに加え、洗面室の拡張を行い化粧台のサイズアップを行いました。キッチンはあまり使っていなかった既存の吊戸棚を撤去して、より広く明るい空間に見えるようにご提案。照明器具はシーリングライトからダウンライトへ変更し、家具等のレイアウトに合わせて配置も変更しました。
LDKの照明は、種類や位置をお客様と入念に打ち合わせました。調光・調色照明を採用したので生活シーンに合わせてご使用いただけます。内装のデザインは奥様のこだわりでグレーを基調とした配色を採用し、アクセントでソファーの裏の壁面に調湿機能のあるエコカラットを取り付けました。
照明の配置にはかなり悩みましたが、とても満足しています。水廻りは使いやすく、日々のお手入れの手間が軽減されました。お部屋は、明るく開放的な空間になったことで、気分も明るくなり、毎日快適に生活することができています。







水廻り工事の際は商品選びが重要になってきます。商品ごとに特徴や様々な機能がありますので、お客様にとって本当に必要な機能を選定していくことでご予算を抑えて良いリフォームができます。間取りが変わる場合は家具のサイズや配置を考慮してプランニングすると良いと思います。
