完成!part2
こんにちは。
設計の新川です。
福岡はだいぶ暖かくなり、通勤時にコートを羽織ってない方を見かけるようになりました。
桜も満開というニュースもあり、まさしく春到来だなと感じています。
今週2日から新入社員の研修が始まります。
私も初心を忘れず仕事に励んでいきたいと思います!
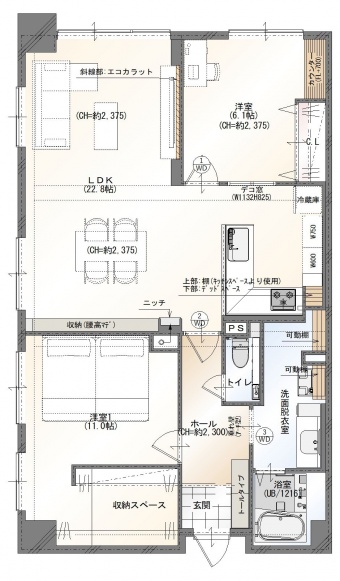
それでは、前回お話しました決定した間取りと施工後の写真をご紹介したいと思います!
まずは決定した間取りから。
主な変更箇所は以下の3つです。
①書斎間用の洋室の位置を変更
②作業スペースを大きくとれるL型のキッチン
③TV背面をエコカラット(両サイドの壁を厚く)
図面と同時にイメージパースも作成しました!
内窓やエコカラットの施工が想像しやすくなったのではないでしょうか。
最後は施工後の写真です。
とても素敵な空間になりました!
4月2日、3日にリフォーム大相談会を行います。
リフォームを迷っている方やお家でのお悩みがある方。
気軽にお立ち寄りください。
ご来店お待ちしております。


