二世帯住宅への改装工事
こんにちは、設計の滝山です。
12月も半ばになり、寒さも厳しさを増してますが、現在インフルエンザが
全国的に流行しているようです。
毎日電車等、人が密集している場所にいる時間があるので、
感染予防に努めていきたいと思います。
さて、今回は戸建て住宅の改装の案件紹介になります。
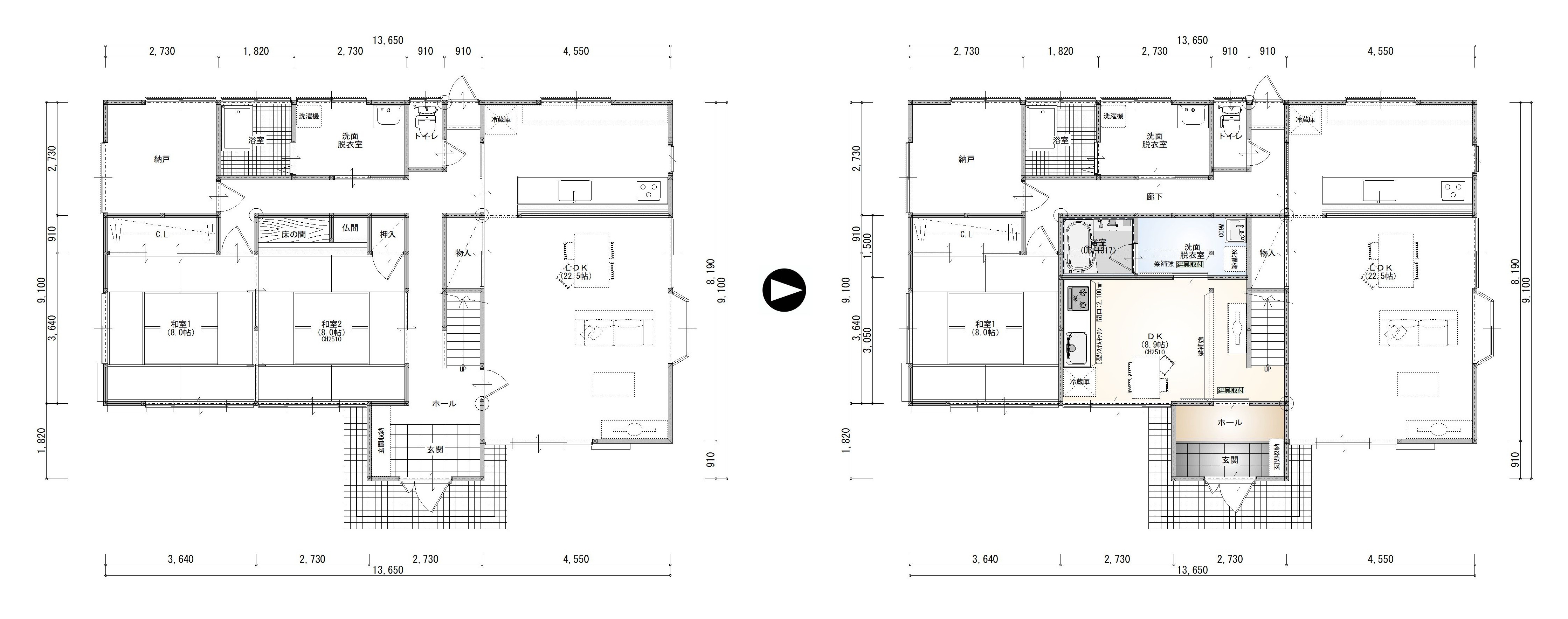
こちらが図面になります。
二世帯で住まわれるということで、1階の既存和室部分に
キッチン、浴室、洗面脱衣室を設ける計画になっています。
DK部分については少し手狭に感じますが、その他の居室は2階部分に設けているため、
家族の団欒スペースとしては十分な広さになっています。
こちらがパースになります。
全体的に明るめの木目で作成しています。
お客様のご希望を反映させたパースを作成することで、
雰囲気を確認することができています。

