LDK改装工事
こんにちは、設計の滝山です。
今年もあと残り1ヶ月と少しとなっています。
今年はあっという間の一年でした。
年末に向けて、今年の振り返りを行い、来年につなげていきたいと思います。
さて、今回はLDK改装工事の案件のご紹介です。
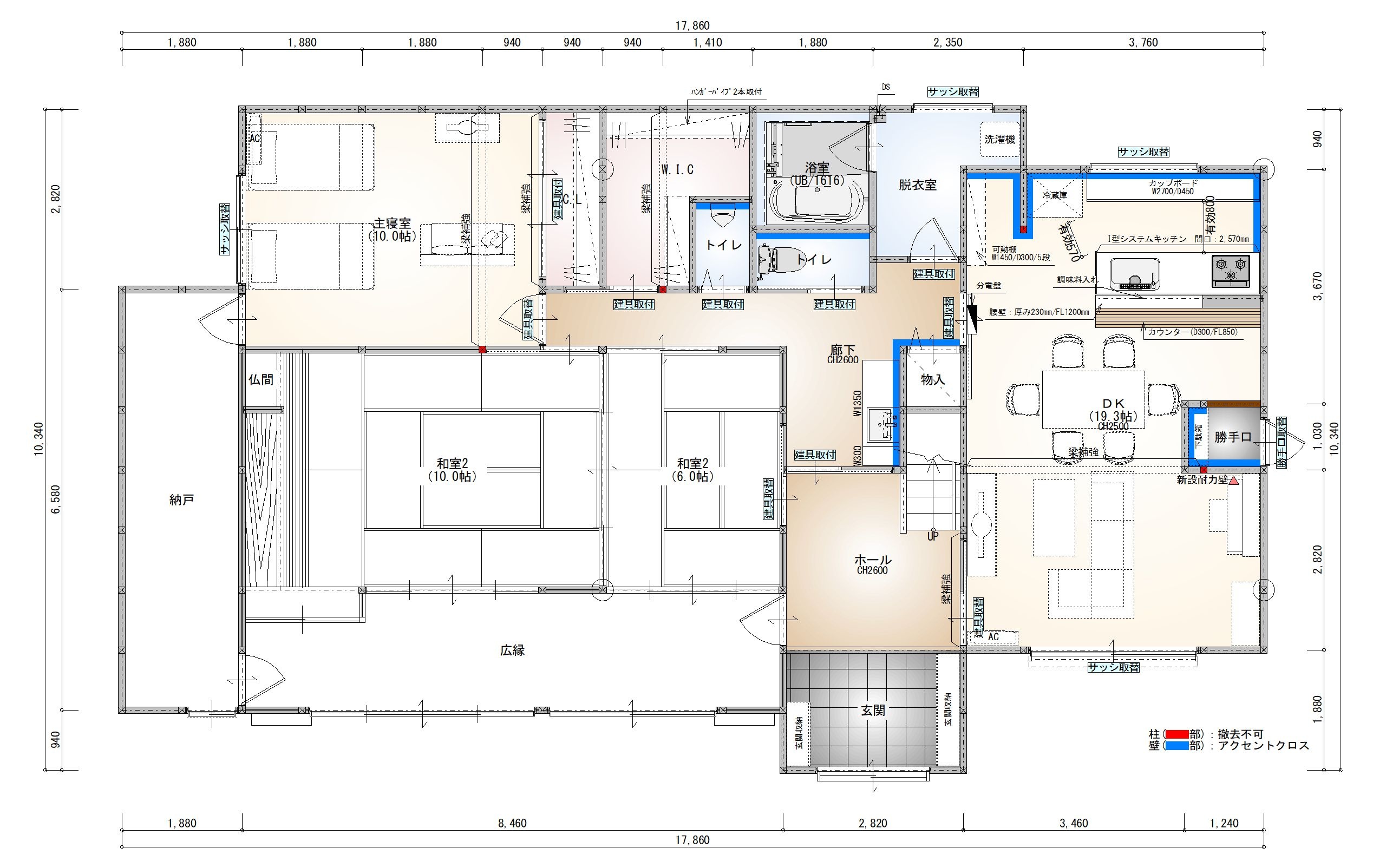
こちらが図面になります。
今回の工事では隣接する和室をLDKに取込、LDK拡張を行う計画になっています。
キッチンは壁付けのキッチンからレイアウトを変更して、対面式にすることで
LDK全体で一体感のある雰囲気になっています。
また、LDK拡張を行う上で、構造上撤去できない柱や梁の補強などを行い、
構造面も考慮しながら、お客様のご要望を反映させたプランにすることができました。
こちらがパースになります。
キッチン前の壁にニッチ収納を計画したため、工事後のイメージが分かりやすいようにしています。

