広々と明るいLDK
こんにちは。アドバイザーの髙橋です。
「寒い」という言葉しかでてこない今日この頃、皆様はいかがお過ごしでしょうか?
くしゃみをする回数が増えてきました。私の噂をしている人が増えてきたのでしょうか。
温かい食べ物がたまらなく愛おしい。そんな季節感ですね。
個人的には「赤だしの味噌汁」が最近のお気に入りです。
さて今回は、断熱性も考慮したLDK改装工事のご紹介です。
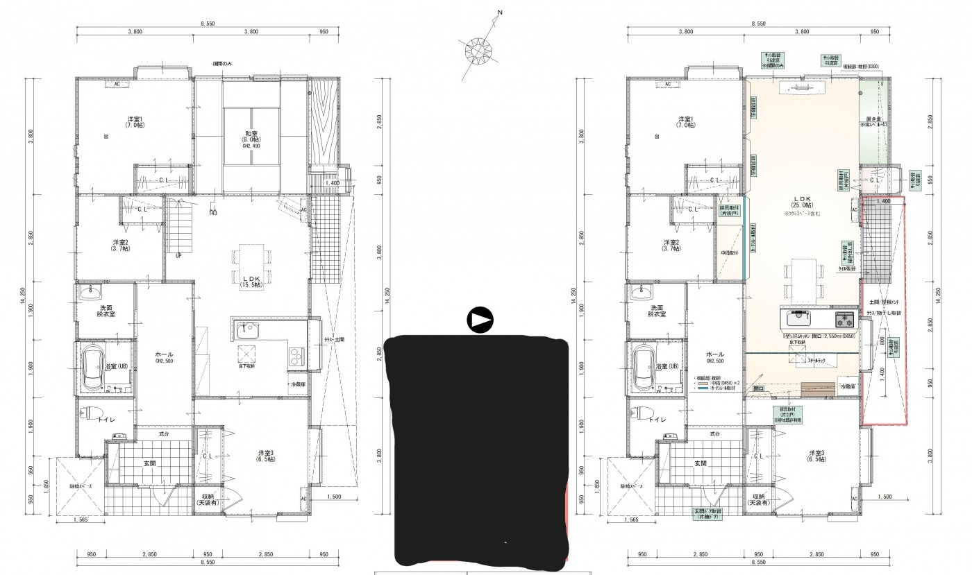
こちらが施工前
LDKと和室が隣接しておりました。
生活スタイルの変化とともに、広々したLDKにされたいとのご要望でした。
今回は、
①和室とLDKを1つにし、LDKを拡張する
②断熱性の高い窓への取替
③収納力のアップ
上記を主軸として、施工させていただきました。
こちらが施工途中と図面になります。
床に関しては、築年数が35年程ということもあり、下地からやり直させていただきました。
窓に関しては、YKKAPの「エピソード」を採用、外側はアルミ製・内側は樹脂製でできており、ガラスについてもLow-e複層ガラスを採用し、断熱性の向上を図りました。
収納に関しては、可動棚を採用し、収納する物の大きさ等によって、棚の位置を上下に変更できるようにいたしました。
こちらが施工後
和室をLDKに取り込んだことで、広々としたLDKにすることができました。
フローリングやクロスの色もシンプルで且つ、明るい色味であったため、広々した空間に仕上げることができました。また、断熱性の高い窓を採用したことで、「前よりも部屋自体が、広々としてあたたかくなった!」とお客様が言われており、嬉しくなりました。
今回の工事では、補助金が使用できましたので、 少しお得に工事をすることができました。
来年も補助金が使えるようですので、皆様、これを機に補助金が使用できる工事を検討されてみませんか?
現場調査、御見積提出は無料で行っております。
今年も残り少し、全力で走り抜けます!!


